SHIVA

The Tanneries
Bermondsey Street
London
SE1 3XH
[ see map ]

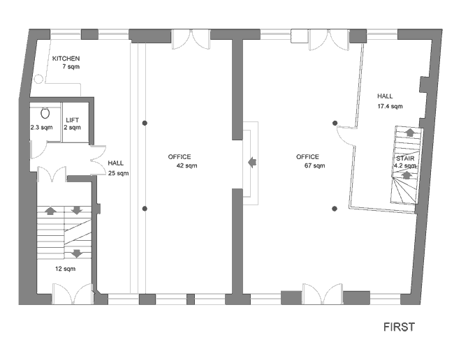
Shiva is the main and largest building of The Tanneries complex with its front elevation to Bermondsey Street. Erected in 1873/4, this warehouse was designed by Architect George Legg.

The building has six storeys and is Grade II listed.

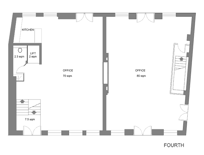
4th Floor
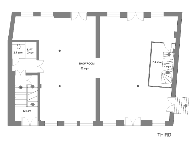
3rd Floor
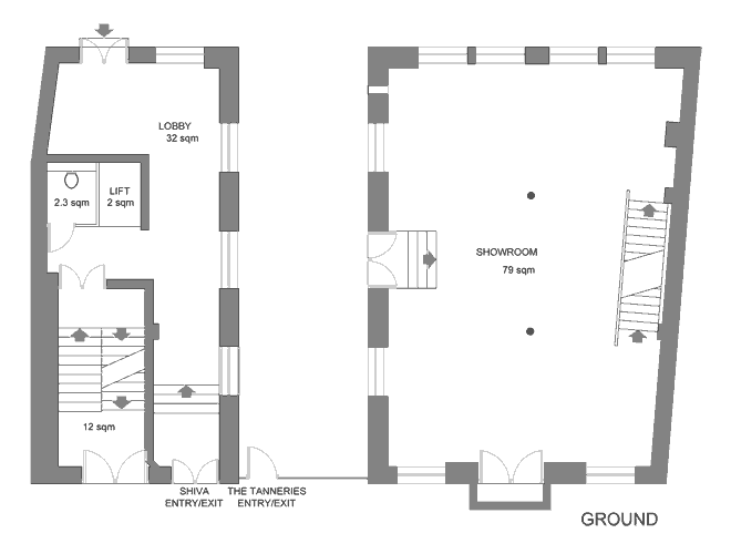
Ground Floor
Basement